STEFANO OSTINELLI ARCHITETTO
ristrutturazione ricostruttiva edificio residenziale
- fotoinserimento -
progetto di nuova abitazione unifamiliare
- render -
progetto di nuova casa d'appartamenti
progetto definitivo per il rifacimento di manto in erba sintetica e installazione copertura pressostatica campo gioco calcio a 5
progetto preliminare per la realizzazione di nuovo nuovo campo gioco calcio a 5, ampliamento spogliatoi e parcheggio
- vista generale a volo d'uccello -
progetto di ristrutturazione fabbricato su due livelli con formazione soppalco
ipotesi di piano integrato d'intervento e progetto per nuovo complesso commerciale con tipologia a corte, ville e blocco commerciale
Concorso per la realizzazione di nuovo edificio residenziale e commerciale in Milano - Sesto San Giovanni
- prospettiva -
piano riqualificazione urbana
- planimetria, prospetti e sezioni ambientali -
ipotesi progettuale per la riqualificazione di area portuale dismessa
progetto e direzione lavori
- ripresa fotografica con drone professionale -
progetto di facciate e sistemazioni esterne di complesso di ville unifamiliari
progetto di casa unifamiliare
progetto per locali conservazione e degustazione vini, liquori e sigari
progetto per arredamento ufficio
progetto di villa bifamiliare
progetto di facciate per residence
progetto di n.3 unità duplex abitazione-lavoro e coffee shop
residential facilities and service aparments
- visualizzazione prospettica -
progetto facciate in stile classico
- prospettiva in stile "pittorico" -
progetto di nuova villa unifamiliare
- prospetti -
ipotesi progettuale per il riuso di capannone dismesso
- ripresa fotografica a volo d'uccello con drone professionale -
progetto e direzione lavori per la costruzione di nuovo complesso con appartamenti, ville quadrifamiliari e negozi
progetto
progettazione di n.4 villette
simulazione fotografica ampliamento e recupero sottotetto
prospetti
ipotesi progettuale
- planimetria -
progetto definitivo
fotoinserimento
ampliamento per realizzazione locali accessori e sistemazione giardino
PROGETTO E DIREZIONE LAVORI
Ristrutturazione integrale e recupero sottotetto
piante
IPOTESI PROGETTUALE
ridefinizione distributiva
piano integrato d'intervento per recupero area industriale dismessa e costruzione di nuovo complesso residenziale e commerciale
- sezioni/prospetti -
pianta, sezione
pianta, sezione, prospetto
PROGETTO
mobile su misura
ristrutturazione con formazione autorimessa interrata
ristrutturazione con recupero sottotetti
schema
layout per nuovo edificio produttivo con uffici
piante, sezione, prospetti
ristrutturazione e recupero sottotetto edificio unifamiliare
soggiorno e soppalco
ristrutturazione cascina di montagna
planimetria
ampliamento e ristrutturazione autoconcessionario ed officina Skoda Auto
pianta
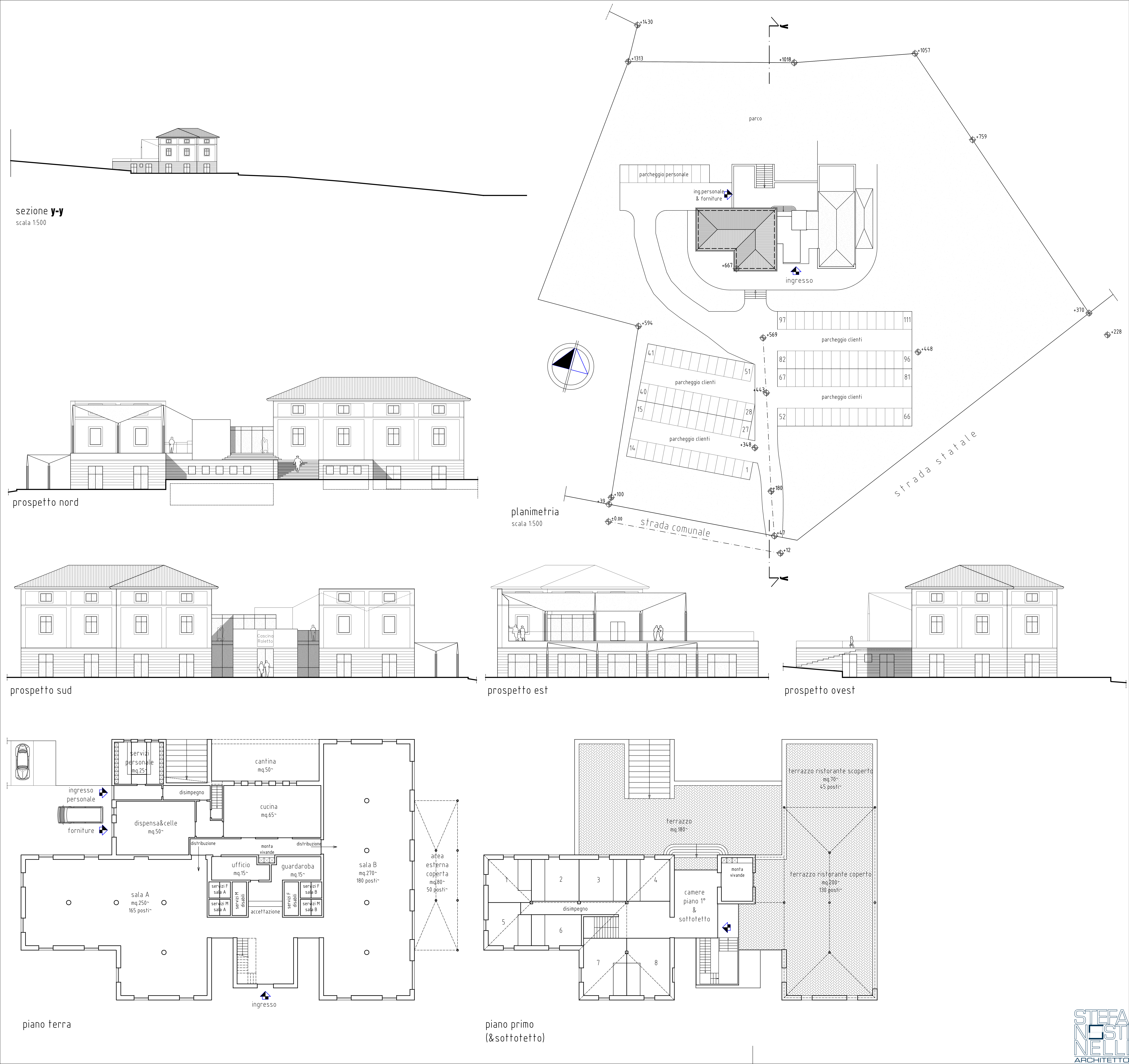
planimetria, piante, prospetti
PIANO ATTUATIVO
travatura nuovo tetto
ristrutturazione con rifacimento copertura e formazione soppalchi
piante, sezioni , prospetti
ristrutturazione integrale con ampliamento e recupero sottotetto
ristrutturazione e formazione box seminterrato
- vista struttura box ricavato in roccia -
capriata in acciaio
modifica distributiva, rifacimento copertura e formazione soppalchi
progettazione e direzione lavori per la ristrutturazione completa con frazionamento in 4 unità abitative
- vista dal giardino -
Architetto Stefano Ostinelli - viale Masia n°65, I 22100 COMO
tel.+39-347-3056923 - email ste.os.arch@gmail.com
Copyright © All rights reserved | This template is made with by Colorlib